Ne pas tomber les murs à Jevíčko, il s'en est fallu d'un cheveu

Le cabinet ORA a été contacté pour reconstruire un bâtiment fascinant : une maison qui avait subi d'importants dégâts, ancienne propriété familiale reconvertie sous le régime communiste en grenier à blé. Le projet est un manifeste écologique sur la façon dont il est possible de traiter les vieilles maisons. Il n'est pas nécessaire de perdre l'authenticité de la vieillesse. Il n'est pas nécessaire de démolir, ni de reconstruire de manière dogmatique. En même temps, même dans ce cas, il est possible de construire économiquement en utilisant des matériaux modernes et d'atteindre les paramètres requis.

Malgré sa reconstruction inconsidérée, la maison n'avait rien perdu de sa grandeur. Au contraire, son emplacement, sa façon de s'élever vers le ciel et sa matière brute qui résiste au temps se sont révélés d'une grande qualité. C'était une ruine jusqu'à l'os. Tout ce qui restait de la maison d'origine était une enveloppe de briques avec un toit. Avec les propriétaires de l'immeuble, nous nous sommes demandés comment la maison pouvait retrouver sa fonction originelle. Toute tentative de réparation traditionnelle signifiait la perte du caractère original de la ruine. Relativement vite, nous avons donc rejeté une reconstruction spéculative de l'état original, ainsi que toute autre imitation. Nous avons proposé de réparer l'état de ruine romantique et d'entrer dans la maison à nouveau.

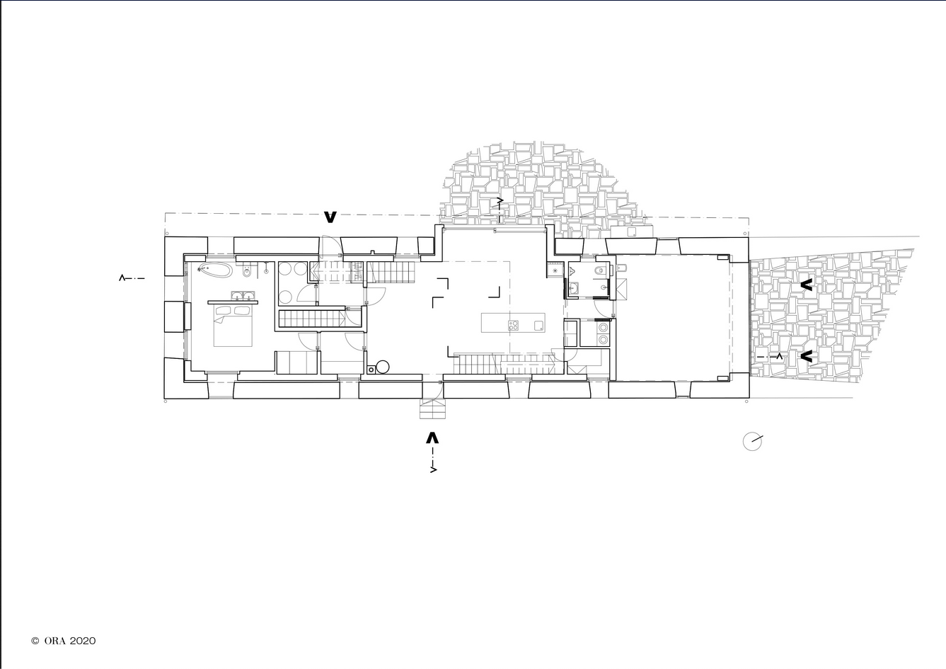
De maison en maison, de maison en ruine. Nous avons proposé de démolir les parties intérieures du bâtiment et de lui rendre sa disposition originale avec deux étages au lieu de trois, ainsi que l'échelle originale.

Dans le même ordre d'idées, nous proposons de revenir à la division originale de la façade. Sans sentiment et en fonction des besoins de l'aménagement, nous avons ouvert d'autres grandes ouvertures là où c'était nécessaire.

Nous avons construit une nouvelle maison isolée dans la ruine étagée existante, une maison qui peut répondre à toutes les normes énergétiques actuelles. Nous avons réutilisé les poutres en bois structurellement saines comme éléments des plafonds et des remplacements de fermes. La plupart des matériaux sont restés en place, simplement réarrangés.

La maison combine le bas et le haut. Nous avons inséré une nouvelle couche courante, différente dans sa finalité de toutes les couches précédentes. Un espace ventilé est maintenu entre la nouvelle structure et la structure originale, et les structures ne se touchent pas. La nouvelle structure est parfois légèrement décalée par rapport à l'ancienne. Les fenêtres ne s'adaptent pas précisément aux ouvertures de l'ancien mur, et à certains endroits, l'ancien mur est également présent à l'intérieur. Il y a un entrelacement visuel des deux mondes. Le nouveau bâtiment pénètre par des ouvertures dans l'ancien mur, et au contraire, l'ancien mur entre par de nouvelles fenêtres.

Le projet est notre manifeste écologique sur la façon dont il est possible de traiter les vieilles maisons. Il n'est pas nécessaire de perdre l'authenticité de la vieillesse. Il n'est pas nécessaire de démolir, ni de reconstruire de manière dogmatique. En même temps, même dans ce cas, il est possible de construire économiquement en utilisant des matériaux modernes et d'atteindre les paramètres requis.

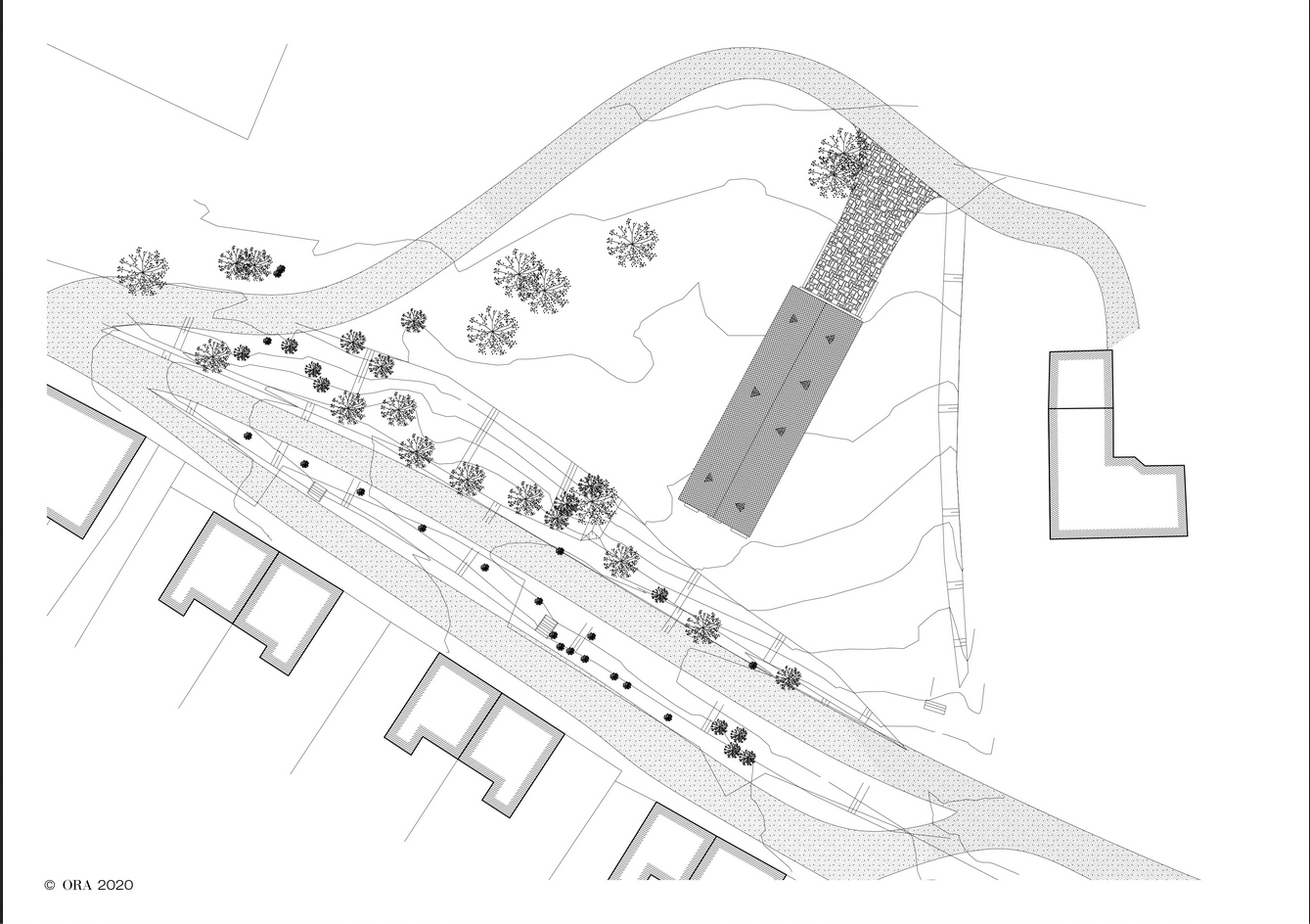
Tout comme la maison a respecté son histoire depuis sa création, le jardin a été conçu pour devenir une partie naturelle du paysage. Il n'y a pas de limites physiques. La limite n'est indiquée que par des fragments de murets et une porte en corten, et le jardin est relié à son environnement. Les vergers, les pelouses des prés et les aubépines ne sont qu'"empruntés" aux environs immédiats. Le jardin devient l'élément de liaison entre la maison, ses vues et le paysage environnant.

Les hôtes de la maison se retrouvent dans un généreux espace de vie à double hauteur avec un poêle en faïence et une cuisine. Il offre également les commodités de la vie moderne. Des escaliers dans un hall généreux mènent les invités à des chambres individuelles avec salle de bain. Là, ils peuvent profiter de la tranquillité de l'espace et regarder le paysage à travers les vieux murs massifs qui encadrent la vue, ou s'abandonner au silence qui règne ici. La table ronde dans le hall communique avec une table en chêne massif à l'extérieur, où vous pouvez vous déplacer lorsque le temps le permet et être encore plus proche du paysage environnant.

ORA - Cabinet d'architecture Znojmo / République Tchèque, conception et réalisation du projet
BoysPlayNice - Photography & ConceptTeam Prague / République Tchèque, sujet photo

Détails du projet : Année 2020 . Travaux commencés en 2018 et achevés en 2020

Commanditaire : Sýpka Arnoštov

Edité par la rédaction le 20/02/2023
Ne pas tomber les murs à Jevíčko, il s'en est fallu d'un cheveu par Ora